Autor

Marcin Gigiel

m.gigiel@wszczecinie.pl

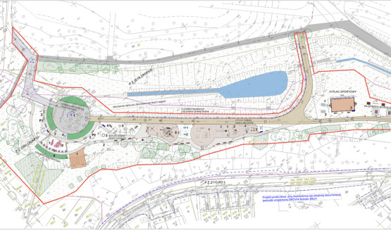
Szczecin stara się o 100 mln zł na Most Kłodny i przebudowę układu dróg na Międzyodrzu
W ostatnich dniach czerwca Miasto Szczecin złożyło wniosek o dofinansowanie przebudowy układu drogowego na Międzyodrzu i budowy Mo...
7 lat temu
Pracodawcy znajdą tutaj utalentowanych pracowników. Druga edycja Targów Pracodawców
„Tu chcesz pracować!” – to hasło, które będzie towarzyszyć tegorocznej edycji. Związek Pracodawców Pomorza Zachodniego zaprasza pr...
7 lat temu
Kolejny rekord lotniska Szczecin-Goleniów
W pierwszym półroczu 2018 r. Port Lotniczy Szczecin-Goleniów obsłużył 282 708 pasażerów. To rekord. Wzrost o blisko 10%, w porówna...
7 lat temu
Przez lata gromadził kolejowe pamiątki. Teraz można je oglądać w nowym miejscu [foto]
Niewielkie muzeum z kolejowymi pamiątkami powstało w wyremontowanym budynku Centrum Szkolenia Maszynistów w szczecińskim oddziale...
7 lat temu
Zmodernizują mostek nad Rusałką [wizualiacje]
Miasto ogłosiło przetarg na modernizację mostku nad Rusałką w Parku Kasprowicza. Odnowiony obiekt będzie podświetlony. Nie zostaną...
7 lat temu
Mieszkańcy zablokowali ruch na ul. Batalionów Chłopskich w Zdrojach [foto]
Mieszkańcy Klucza, Żydowiec i Podjuch domagają się przywrócenia na starą trasę autobusów linii 55. W ramach protestu, w piątek o g...
7 lat temu
Czy przy tej budowie ucierpiały ptaki? Przyrodnicy alarmują, inwestor uspokaja
Chodzi o budowę Osiedla Galaktyka, które powstaje w okolicach ul. Królewskiego na Warszewie. Tuż obok placu budowy znajduje się st...
7 lat temu
O "menelizacji Szczecina", czyli ile powinno być w mieście punktów sprzedaży alkoholu
Maksymalnie 800 zezwoleń na sprzedaż piwa, maksymalnie 650 na sprzedaż najmocniejszych alkoholi i 400 zezwoleń dla lokali gastrono...
7 lat temu
Na Jasnych Błoniach stanie ławeczka Władysława Bartoszewskiego
Radni wyrazili zgodę na wzniesienie pomnika w formie ławeczki z naturalnej wielkości postacią Władysława Bartoszewskiego. Stanie n...
7 lat temu
Sprawdzili stan techniczny szczecińskich rowerów miejskich. Większość miała usterki
Szczeciński Ruch Miejski wraz ze „Szczecińskim Holendrem”, prowadzącym na YouTube kanał o tematyce rowerowej, przeprowadzili spo...
7 lat temu
Sąsiedzki Ogród Kultury zrównany z ziemią. Ruszyła budowa siedmiopiętrowego budynku
Tuż obok Trafostacji Sztuki, przy ul. Św. Ducha, powstaje River House Szczecin – siedmiopiętrowy budynek mieszkalny. To inwestycja...
7 lat temu
Aquapark będzie dużo droższy. Będziemy go spłacać aż do 2040 r.
W najnowszej Wieloletniej Prognozie Finansowej Miasta Szczecin, koszty budowy aquaparku Fabryka Wody szacowane są już na 209 mln z...
7 lat temu

Spis treści